GOJO PLACE、最上階のお部屋の募集がスタートしました。
北西の角部屋、902号室。眺望も抜群です。
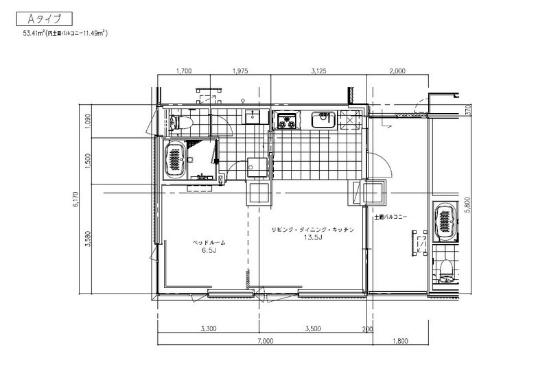
最上階の9階は、基準階よりも天井がさらに高く、とても開放感のある空間が広がります。
また、このフロアだけ基準階とは間取りも違うため、他にはないユニークな空間です。
広さは53.51㎡(うち土間バルコニー11.49㎡)の広めのワンルーム。
お住まいにはもちろん、SOHO利用やセカンドハウス利用にもおすすめです。
キッチンは3口ガスコンロに広々シンク。
室内の素材は、キッチン含め、水回りは床材をグレーのタイル張り。
フローリング材は9階は、メープル材を使用しています。
白壁で開口部も多く、自然光が気持ちよく差し込み爽やかな空間です。
マンション内に入居者さま専用のトランクルーム(有料)もありますので、
収納スペースが足りない方はご利用いただくことも可能です。
現在ご入居中のため、2026年2月1日よりご内覧可能です。
ご興味をお持ちの方は、下記よりぜひお気軽にお問い合わせください。
https://www.hase-building.co.jp/contact/building.html
【成約済】GOJO PLACE|902号室募集のお知らせ
902号室
-
広さ
53.41㎡(内土間バルコニー11.49㎡) -
賃料
183,000円 -
共益費
12,000円 -
敷金
183,000円 -
礼金
366,000円 -
更新料
なし -
その他
火災保険加入必須 / 退去時クリーニング費用50,000円(税別)
保証会社加入必須(初回保証委託料:賃料共益費等の1ヶ月分、継続保証料:10,000円/年) -
入居可能時期
2026年2月下旬以降