六角長谷ビル(烏丸通六角の北西角)の募集情報です。
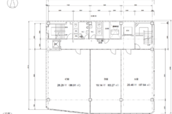
5階C室/3階C室 各26.29坪(86.91㎡)で、南向きの窓側から気持ちよく自然光が差し込みます。
四条烏丸・地下鉄22番出口より徒歩5分。
烏丸御池・地下鉄6番出口より徒歩3分。
烏丸通沿い。アクセス抜群の好立地ですが、比較的リーズナブルにお借りいただけます。
短期間でのご利用もご相談受付中。
展示会、ポップアップイベント、現場事務所やモデルルーム、ショールームなどにも。
また、書庫や倉庫としてのご利用も受け入れ可能です。
様々ご利用用途で、お気軽にご相談ください。
現在、保証金不要(家賃保証会社利用必須)、
原状回復時は原則美装のみで可能で受付ております。
軽やかに拡張移転も可能なので、スタートアップ企業様にもおすすめです。
お車をご利用の方も、通りを挟んで南側の第11長谷ビル内蔵の立体駐車場を
ご利用いただくことができます。月極契約でのご利用のみですが、ご相談くださいませ。
ご興味をお持ちのお客様は、下記よりお気軽にお問い合わせくださいませ。
https://www.hase-building.co.jp/contact/
六角長谷ビル|5階C室/3階C室(26.29坪)募集情報
六角長谷ビル 5階C室/3階C室
-
広さ
各26.29坪(86.91㎡) -
入居可能時期
5階C室 2025年11月中旬
3階C室 即入居