MUROMACHI PLACE・406号室の募集のお知らせです。
地下鉄四条駅・烏丸駅から徒歩3分のMUROMACHI PLACEは、
街中にありながら、通りからエントランスの大きく育った木々を挟み
セットバックして建っています。石畳のエントランスも心地よいです。
大変便利な立地のため、どこに行くにもアクセス抜群で
生活に必要なアイテムはとてもスムーズに揃います。
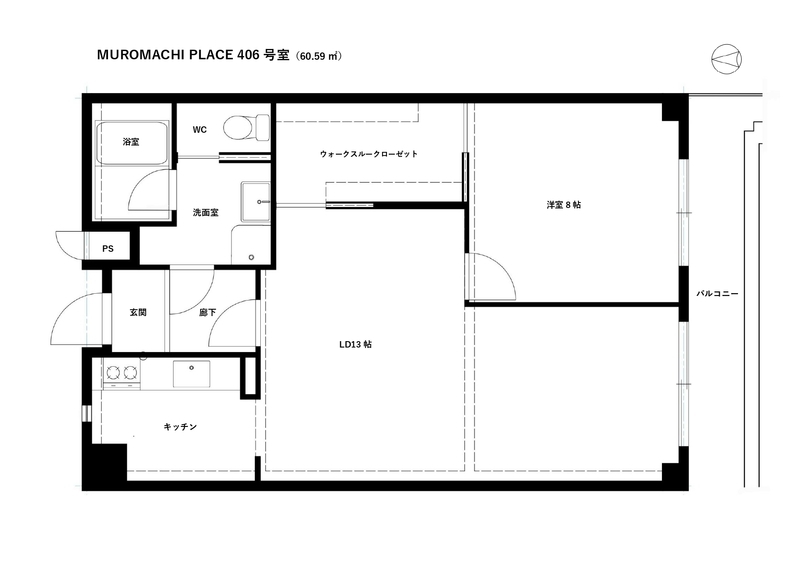
今回募集のお部屋は、4階南向きの1LDKのお部屋です。
ウォークスルークローゼット付きです。
現在お部屋の改装がほぼ終わり、仕上がり状況でご覧いただけます。
水回りも壁紙も床材も全てリニューアルし、とても気持ちの良い環境に生まれ変わっています。
ご興味をお持ちのお客様は、ぜひお気軽に下記よりお問い合わせください。
https://www.hase-building.co.jp/contact/
【成約済】MUROMACHI PLACE|406号室募集のお知らせ
406号室
-
広さ
60.59㎡ -
賃料
162,000円 -
共益費
13,000円 -
敷金
162,000円 -
礼金
162,000円 -
更新料
なし -
その他
火災保険加入必須 / 退去時クリーニング費用50,000円(税別)
保証会社加入必須(初回保証委託料:賃料共益費等の1ヶ月分、継続保証料:10,000円/年) -
入居可能時期
11月上旬頃