KAWARAMACHI PLACE

KAWARAMACHI PLACE|402号室募集のお知らせ

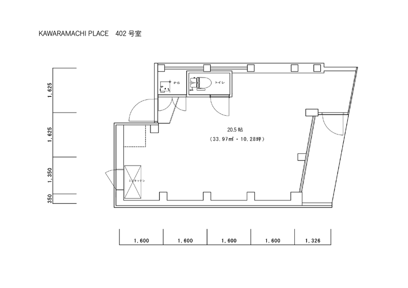
KAWARAMACHI PLACE 402号室の募集をスタートします。

元々バスルーム付きのお部屋でしたが、ワークスペースとしてお使いいただきやすいように
間取りを変えて、広いワンルームにトイレとミニキッチン付きのお部屋へとリノベーションしたお部屋です。

東向きのお部屋で、足元まで全面ガラス張りの開口部からは気持ちよく自然光が差し込みます。
壁は白のペンキ塗装。床はモルタル床で、爽やかな開放感のある空間です。

バスルームはありませんが、すぐ徒歩圏内に人気の銭湯もありますので
ワークスペースのみならず、住居としてやセカンドハウスとしてもご活用いただくことも可能です。

京阪「清水五条」駅から徒歩5分。地下鉄「五条」駅からも徒歩10分ほどで、
阪急河原町駅や京都駅へも、徒歩圏内。自転車なら10分以内とアクセス良好な立地です。

鴨川もすぐそばに流れ、さらに近くの高瀬川は整備が進み、小川沿いを散歩したり休憩したりも気持ち良いです。
周辺には、素敵なカフェやお料理屋さん、ショップやバーやホテルまで、充実のエリアと年々新たに進化をしている場所です。
落ち着く気持ちよさも刺激もある河原町五条界隈、おすすめの物件です。

現在ご入居中のため、1月18日以降、ご内覧可能です。
ご興味をお持ちいただけましたら、ぜひお気軽にご内覧にお越しください。
詳細・お問い合わせは、下記リンクよりご確認いただけます。

402号室

  • 広さ

  • 賃料

  • 共益費

  • 敷金

  • 礼金

  • 更新料

  • その他

TOP