GOJO PLACE

GOJO PLACE|302号室募集のお知らせ(5月以降ご内覧可能)

Photo by Mai NARITA

Interior coordinate by Naomi KOZAI

 


烏丸五条エリア(五条通・新町通の南東角)のGOJO PLACE 302号室の募集情報です。


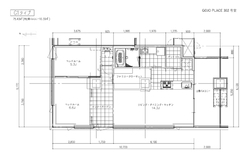
北西の角部屋で、広さは75.43㎡(土間バルコニー込み)のお部屋です。

室内は、胡桃の木のフローリングと白い壁を基調とし、玄関土間にはデッキ材。

キッチン、バスエリアの洗面スペース、リビングの一部にグレーのタイル材を使用しています。

 

比較的高い天井で、開口部も多く、自然光がふんだんに差し込みます。

窓を開けて、気持ちよく風を通すことも十分にできるお部屋です。

ウォークスルークローゼットを設けており、2方向から出入りできる風通しの良い収納スペースもあります。

 

キッチンカウンターには、3口のガスコンロと広いシンク。

キッチンカウンターの後ろには、たっぷりサイズのパントリーも。

 

西側のお向かいには美味しいコーヒー屋さん。
界隈にも美味しいパン屋さんやカフェ、お出汁やさん、朝食を楽しめるホテルなども。

和菓子屋さん等飲食店も以前よりさらに増えています。鴨川に歩いて散歩も◎

 

京都駅にも近く、徒歩で向かうことも可能です。

電車の場合は最寄りの地下鉄五条駅までは徒歩5分ですので、1駅で到着します。

烏丸界隈や京阪沿線にもアクセスもとても良いので、

お仕事はもちろん、観光にもとてもおすすめの立地です。

 

現在お住まい中のため、お引っ越し後の5月以降ご内覧可能予定です。

ご興味をお持ちいただけましたら、是非ご見学にお越しください。

 

お問い合わせはこちらから↓

https://www.hase-building.co.jp/contact/

302号室

  • 広さ

  • 賃料

  • 共益費

  • 敷金

  • 礼金

  • 更新料

  • その他

  • 入居可能時期

TOP