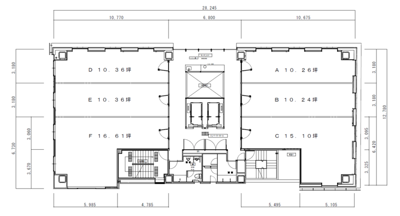
2025年07月11日 第15長谷ビル|6階DEF室 募集のお知らせ Photo by Hiroyuki HIRAI 第15長谷ビル・6階DEF室37.33坪(123.41㎡)の募集です。 西側のお部屋で、窓からの景色は抜けているので開放感のあるお部屋です。 Photo by Hiroyuki HIRAI 館内共用部はシースルーエレベーターや吹き抜けの空間で、館内全体に各所から光が気持ちよく差し込み、風がゆるやかに通ります。 少し一息つくのにちょうどいいベンチや、 屋内外ともに共用部、貸室内にも木素材を多く用いることで、 街中にありながらもゆったりリラックスできるような豊かな環境です。 Photo by Hiroyuki HIRAI 立地は、四条烏丸のアクセス抜群の好立地。 市内はもちろん、県外へのご移動もスムーズな場所です。 空間の素材や色味、自然光の差し込みや空気循環など 居心地の良い気持ちのいいワークスペースを考慮して創られた第15長谷ビル。 現在ご利用中ですが、ご内覧可能です。(事前に日程調整要) ご興味を持ちの方は、下記リンクよりお気軽にお問い合わせくださいませ。 https://www.hase-building.co.jp/contact/ 6階DEF室 広さ 37.33坪(123.41㎡) 入居可能時期 2026年2月上旬予定 2025年08月10日 【成約済】京都|第7長谷ビル 3階A室 (9.21坪)募集情報 2025年07月04日 【成約済】第14長谷ビル|7階A室募集のお知らせ 詳細ページへ戻る