第12長谷ビル

京都・四条烏丸エリア|第12長谷ビル・7階D室 募集情報

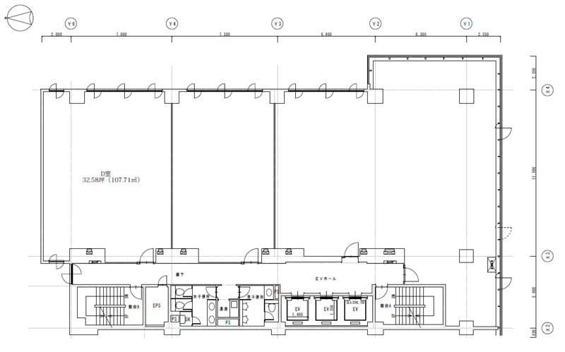
四条烏丸エリアの第12長谷ビルにて、32.58坪(107.71㎡)の区画を募集しています。
地下鉄四条烏丸・22番出口より徒歩3分と好立地。

通りから少しセットバックして建つ建物前には、大きなクスノキが育ち、
エントランス前には春に美しい花を咲かせ、秋には紅葉するハナミズキが育ちます。
街中ですが、大きな樹木のおかげで落ち着いた雰囲気のビルです。

大型の立体駐車場を備えているため、社用車の月極利用はもちろん、
ご来客時の一時駐車(有料)にも便利にお使いいただけます。
雨の日でも濡れることなく乗り降りでき、駐車場管理人のサポート体制も整っています。

募集の7階D室は、朝日の差し込む東向き。
東西にある窓を開けると気持ちよく風が通ります。

ぜひお気軽に下記よりお問い合わせください。
https://www.hase-building.co.jp/contact/

第12長谷ビル 7階D室

  • 広さ

  • 入居可能日

TOP